Facilities
Station facilities
Construction of the new station building and interior have been completed in 2025, we thus offer a variety of new and modern equipment at the station. Sustainable energy resources (as far as possible in an Arctic environment) and responsible waste management were key elements for the design of the new station.
Station equipment:
- Storage and drying room
- Kitchen
- Dishwashers
- Showers
- Water toilets
- Washing machine
- WiFi connection (via satellite)
Safety:
- Rifles
- Basic First Aid
- Fire extinguishers
Research Equipment:
- AWS in close proximity (SER_B)
- …
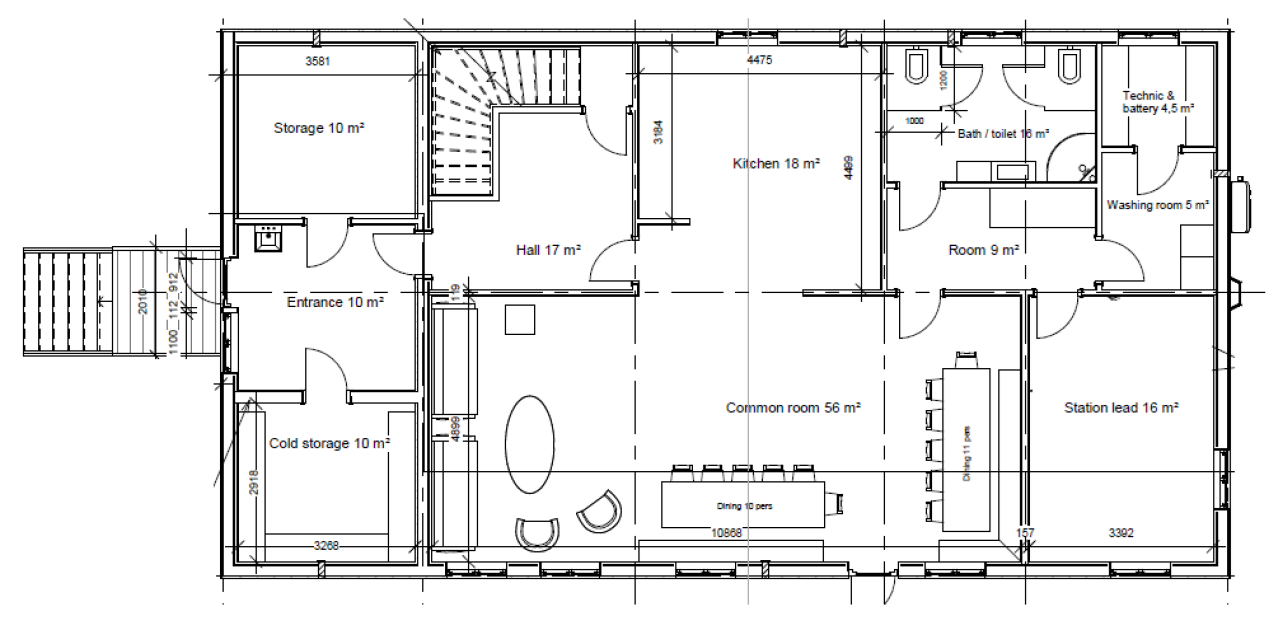
Floor plan - 1st Floor
A functional cooking area equipped for meal preparation.
A spacious gathering area designed for relaxation and group activities.
A dedicated area for keeping supplies and equipment.
A welcoming space leading into the main areas of the building.
A temperature-controlled room for preserving perishable goods.
A central connecting space providing access to multiple rooms.
A shared restroom with essential amenities.
A designated workspace for station operations and leadership.
A utility space for laundry and cleaning.
A technical room housing electrical and battery systems.